Aangeboden woning

leuke hoekwoning met oprit en hek grote tuin recent zonne panelen geplaatst een open keuken

Aanvullende informatie

Verhuuder: Lefier

Kenmerken

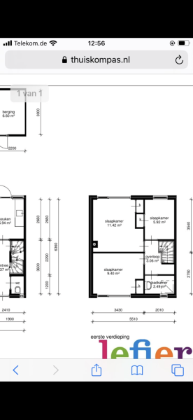
  • Badkamer
  • Douche
  • C.V.
  • Voortuin
  • Berging
  • Achtertuin

Voorzieningen

  • Parkeergelegenheid
  • Park- of groenvoorziening
  • Bus/tramverbinding
  • Kindvriendelijk
  • Scholen
  • Winkels
  • Treinstation

Gezochte woning

De aanbieder van deze woning is opzoek naar

Het in niet verplicht een hoekwoning een tussenwoning zou ook een mogelijk heid zijn

Contact

Log in of maak een account aan om te reageren

Inloggen