Aangeboden woning

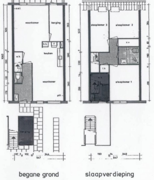
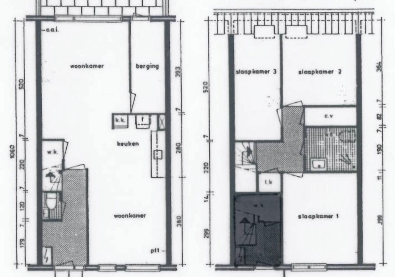
Woning ruil aangeboden: Bent u een groot gezin en woont u te klein? Lees dan deze advertentie. Wij bieden aan: Eengezinswoning te Arnhem zuid. Op loop afstand van station zuid en woonboulevard Arnhem 3x slaapkamer 2x woonkamer (zie plattegrond) Voortuin Grote achtertuin Ruime keuken met gas aansluiting en elektrisch koken. Meerdere kleinere en grote inpandige bergruimtes (zie plattegrond) Openbaar parkeren Op de 2e etage bevind zich een boven woning. Daar woon een rustige persoon. Huidige huurprijs die wij betalen is 905€ incl servicekosten (kan bij de nieuwe huurder mogelijk anders zijn) Passend toewijzen van toepassing Verhuurder(s) moeten met beide akkoord gaan. Heeft u een low budget koop woning en wilt u naar sociale huur? Ook dan mag u ons een privébericht sturen. Ter overname: Laminaat vloer €50 Tapijt tegels (nieuwe gekocht in 2025) €150 Koelkast uit 2024 € 80 Trapmatten €0 Gordijnen incl rails €150 Voor ons is deze woning te groot. Wij zijn maar met ze 2, en gebruiken niet alle ruimtes. Wij zoeken daarom het volgende: Een kleine studio zonder slaapkamer of gelijkvloerse woning met max. 1 slaapkamer Liefst met lift Bij voorkeur in het centrum van Arnhem of Westervoort Of rondom het centrum van Arnhem. Voorwaarden / regels te vinden op de website van omnia wonen onderwerp woning ruil

Aanvullende informatie

Verhuuder: omnia wonen

Kenmerken

  • Badkamer
  • Douche
  • C.V.
  • Voortuin
  • Berging
  • Achtertuin

Voorzieningen

  • Parkeergelegenheid
  • Park- of groenvoorziening
  • Bus/tramverbinding
  • Kindvriendelijk
  • Scholen
  • Winkels
  • Treinstation

Gezochte woning

De aanbieder van deze woning is opzoek naar

Wij zoeken een studio of een apartment met 1 slaapkamer in het centrum van Arnhem of Westervoort Liefst met lift of traplift mogelijkheid

Contact

Log in of maak een account aan om te reageren

Inloggen