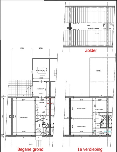
Mooie woning uit 1958 die tien jaar geleden helemaal gerenoveerd is. Toen is een bijkeuken gebouwd tussen het huis en de schuur in de tuin, wat fijne extra ruimte geeft. Diepe achtertuin op het zuidwesten, voor het huis geen verkeer maar een grasveld, open keuken (anders dan op de plattegrond is aangegeven), De zolder is bereikbaar via een vlizotrap, heeft veel bergruimte maar geen ramen en is dus niet meegenomen in de oppervlakteberekening van het huis. . Staat in een rustige buurt aan de zuidkant van Haren richting Glimmen. Bos vlakbij, zwembad vlakbij en je bent ook zo in het centrum van Haren. Groningen is 20 minuten fietsen of 10 minuten met de auto. Bushalte op 2 minuten lopen van het huis, treinstation op 10 minuten lopen.
Verhuuder: Woonborg
Zoeken een woning van vergelijkbare grootte, minimaal 3 slaapkamers is een voorwaarde, de rest hangt samen met de plek. Woningtype hoeft ook niet per se hetzelfde te zijn, maar je moet op deze website een voorkeur aangeven.
 
                                                                             
                                                                             
                                                                             
                                                                             
                                                                             
                                                                             
                                                                             
                                                                             
                                                                            