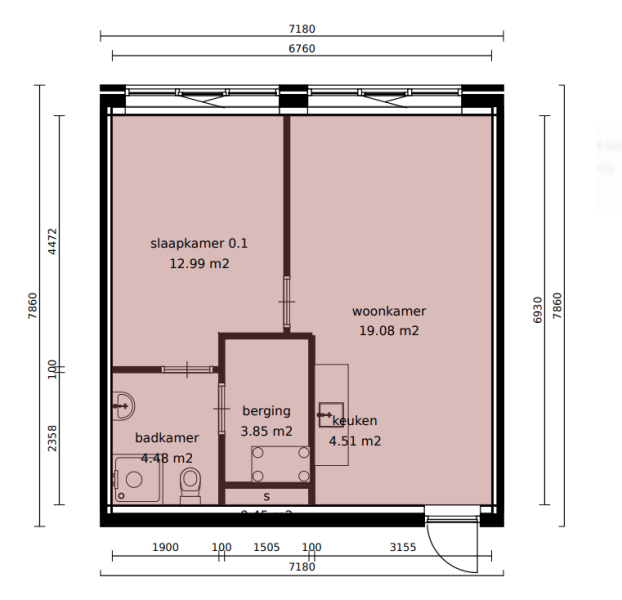
Aangeboden woning

netter woning 1 slaap kamer en de woonkamer samen met de keuken. warmte pomp vloer verwarming.;

Aanvullende informatie

Verhuuder: thuis

Kenmerken

  • Badkamer
  • Douche
  • C.V.
  • Berging

Voorzieningen

  • Parkeergelegenheid
  • Park- of groenvoorziening
  • Bus/tramverbinding
  • Scholen
  • Winkels

Gezochte woning

De aanbieder van deze woning is opzoek naar

Contact

Log in of maak een account aan om te reageren

Inloggen