Aangeboden woning

Nieuwbouw appartement in Waterrijk Meerhoven.

Aanvullende informatie

Verhuuder: Wooniezie

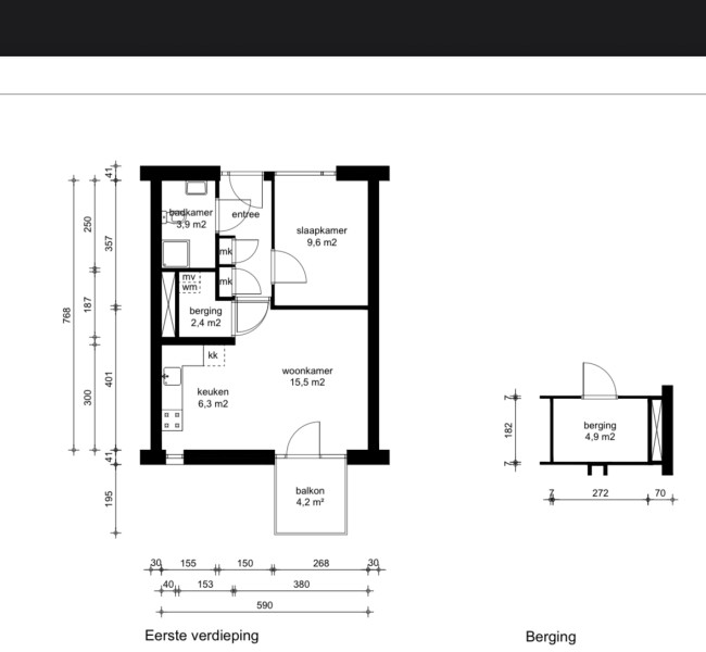
Kenmerken

  • Badkamer
  • Douche
  • Berging
  • Lift
  • Balkon

Voorzieningen

  • Parkeergelegenheid
  • Park- of groenvoorziening
  • Bus/tramverbinding
  • Kindvriendelijk
  • Scholen

Gezochte woning

De aanbieder van deze woning is opzoek naar

Op zoek naar een woning met minimaal 3 kamers en graag met een tuin of ruim dakterras.

Contact

Log in of maak een account aan om te reageren

Inloggen