Aangeboden woning

Heel nette woning. Alles is vorig jaar in november aangepakt. Nieuwe keuken, nieuwe badkamer en heel nette voor en achtertuin

Aanvullende informatie

Verhuuder: Eigen haard

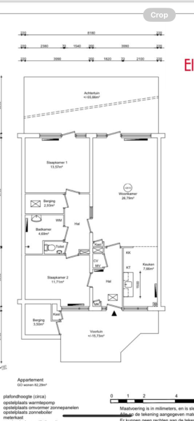
Kenmerken

  • Badkamer
  • Douche
  • C.V.
  • Voortuin
  • Berging
  • Achtertuin

Voorzieningen

  • Parkeergelegenheid
  • Park- of groenvoorziening
  • Bus/tramverbinding
  • Kindvriendelijk
  • Scholen
  • Winkels

Gezochte woning

De aanbieder van deze woning is opzoek naar

Wij zijn op zoek naar een grotere woning. het liefst met een tuin. Benedenwoning, eengezinswoning, hoekwoning..

Contact

Log in of maak een account aan om te reageren

Inloggen