Aangeboden woning

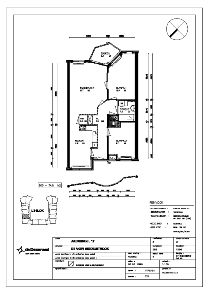
Sinds 2016 woon ik met veel plezier in deze lichte en gezellige woning in de rustige wijk De Aker in Amsterdam. Het is een plek waar ik me direct thuis voelde – warm, praktisch en vol daglicht. De woning is 73 m² groot en ligt op de derde verdieping van een goed onderhouden gebouw uit 1997. Er is een lift, dus geen gesjouw met boodschappen. Wat ik persoonlijk erg fijn vind, is de lichtinval: ’s Ochtends komt de zon prachtig binnen via de grote ramen in de woonkamer, en ’s avonds schijnt de zon heerlijk naar binnen via de keuken. Het geeft de hele dag een levendige, warme sfeer. De indeling is prettig en logisch. Je komt binnen via een hal met handige bergruimte. Links is de keuken – ruim genoeg voor een eettafel met vier stoelen – en rechts ligt een knusse slaapkamer met een raam en een inbouwhoekje dat perfect dienstdoet als kledingkast. Verderop in de hal vind je het aparte toilet en de ruime badkamer met douche, wastafel en plek voor de wasmachine. Aan het einde van de gang ligt de woonkamer, ruim en licht, met een deur naar het balkon. Via een brede doorgang kom je in de tweede kamer – die gebruik ik als atelier, want ik ben beeldend kunstenaar. Deze kamer heeft twee ramen en is ook heel geschikt als extra slaapkamer of werkkamer. Beneden heb ik een eigen berging van 6 m² – ideaal, en nog mooier: het is de eerste berging naast de achterdeur van het gebouw, dus superhandig. Qua ligging zit je hier echt goed. Voor de deur stopt tram 1, die je in 14 minuten naar station Lelylaan brengt – daar heb je trein, metro en tram. Ook de bus is op een paar minuten lopen. De snelweg is vlakbij, zonder in druk stadsverkeer te belanden, en Schiphol is slechts 10 minuten rijden. Ideaal! De buurt is rustig, groen en vriendelijk. De buren groeten elkaar nog gewoon, en het voelt hier veilig en prettig. Voor mij is dit een heerlijke plek geweest, perfect voor een alleenstaande of een klein gezin.

Aanvullende informatie

Verhuuder: De Alliantie

Kenmerken

  • Badkamer
  • C.V.
  • Lift
  • Balkon

Voorzieningen

  • Parkeergelegenheid
  • Park- of groenvoorziening
  • Bus/tramverbinding
  • Kindvriendelijk

Gezochte woning

De aanbieder van deze woning is opzoek naar

Contact

Log in of maak een account aan om te reageren

Inloggen