Aangeboden woning

Zonnige woning Aan de Amstel met uitzicht op Amstelstation Zoek een woning in Amstelveen omdat ik daar werk

Aanvullende informatie

Verhuuder: Eigenhaard

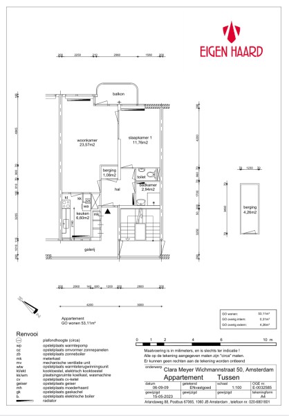
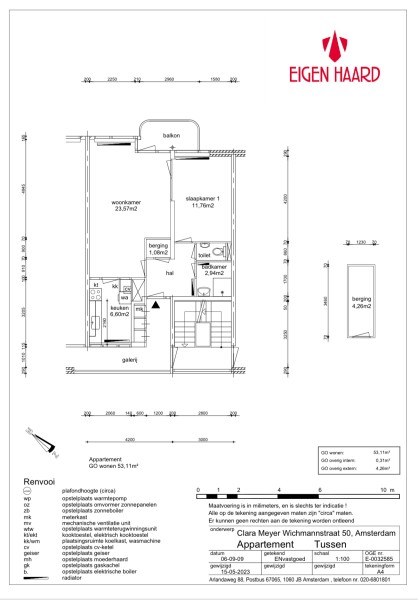
Kenmerken

  • Badkamer
  • Douche
  • C.V.
  • Berging
  • Lift
  • Balkon

Voorzieningen

  • Parkeergelegenheid
  • Park- of groenvoorziening
  • Bus/tramverbinding
  • Kindvriendelijk
  • Winkels
  • Treinstation

Gezochte woning

De aanbieder van deze woning is opzoek naar

Amstelveen

Contact

Log in of maak een account aan om te reageren

Inloggen