Aangeboden woning

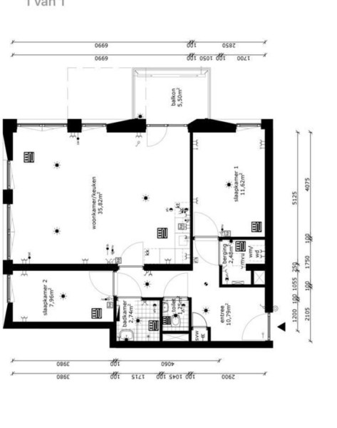
Een prachtig mooie nieuwe woning op de 4 verdieping met lift, gelijkvloers. bouwjaar 2021. ik wil ruilen met iemand in Breda of Oosterhout en omgeving, in noord Brabant. ik wil minimaal 2 slaapkamers

Aanvullende informatie

Verhuuder: Alliantie

Kenmerken

Voorzieningen

  • Parkeergelegenheid
  • Kindvriendelijk

Gezochte woning

De aanbieder van deze woning is opzoek naar

Ik zoek een woning in Breda of Oosterhout en omgeving of ergens anders in noord Brabant. Maakt het niet uit wat voor type woning is, als het maar goed geïsoleerd is en niet te oud.

Contact

Log in of maak een account aan om te reageren

Inloggen