Aangeboden woning

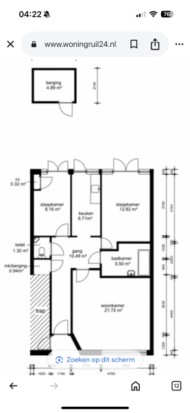
De woning bevind zich in Zuid, Rivierenbuurt. Zeer nette woning op de begane grond, met grote tuin en berging. De woning is instapklaar. Volledige laminaatvloer Nette keuken met alle benodigde apparatuur. Ook een vaatwasser! Badkamer voorzien van bad Separate toilet Beide slaapkamers grenzen aan de tuin en zijn beide voorzien van openslaande deuren. Genoeg parkeer mogelijkheden en geen wachttijd parkeervergunning!

Aanvullende informatie

Verhuuder: Huizenmij

Kenmerken

  • Badkamer
  • Douche
  • Berging
  • Bad
  • Achtertuin

Voorzieningen

  • Parkeergelegenheid
  • Bus/tramverbinding
  • Kindvriendelijk
  • Scholen
  • Winkels
  • Treinstation

Gezochte woning

De aanbieder van deze woning is opzoek naar

Contact

Log in of maak een account aan om te reageren

Inloggen