Aangeboden woning

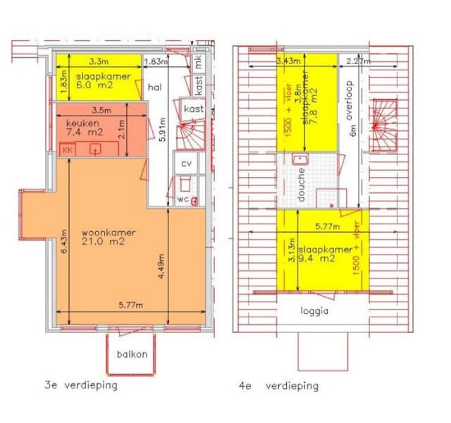
Dit nette en goed onderhouden maisonnette-appartement ligt in het centrum, direct naast het winkelcentrum. Winkels, supermarkten en andere voorzieningen zijn dus op loopafstand. De woning is verdeeld over de 3e en 4e verdieping. Op de 3e verdieping vind je een lichte woonkamer met toegang tot het balkon. De keuken is een aparte ruimte en netjes afgewerkt. Ook is er op deze verdieping een extra kamer die te gebruiken is als slaapkamer, werkkamer of hobbyruimte. Verder zijn er een hal, een apart toilet en een bergkast met cv-opstelling. Op de 4e verdieping zijn nog twee slaapkamers en een nette badkamer met douche. Vanuit deze verdieping is er toegang tot de loggia. Op de begane grond is daarnaast een eigen berging aanwezig, handig voor fietsen en extra spullen. Een fijne woning op een centrale locatie met alles dichtbij.

Aanvullende informatie

Verhuuder: Kennemer Wonen

Kenmerken

  • Badkamer
  • Douche
  • C.V.
  • Berging
  • Balkon

Voorzieningen

  • Bus/tramverbinding
  • Winkels
  • Treinstation

Gezochte woning

De aanbieder van deze woning is opzoek naar

Contact

Log in of maak een account aan om te reageren

Inloggen