Aangeboden woning

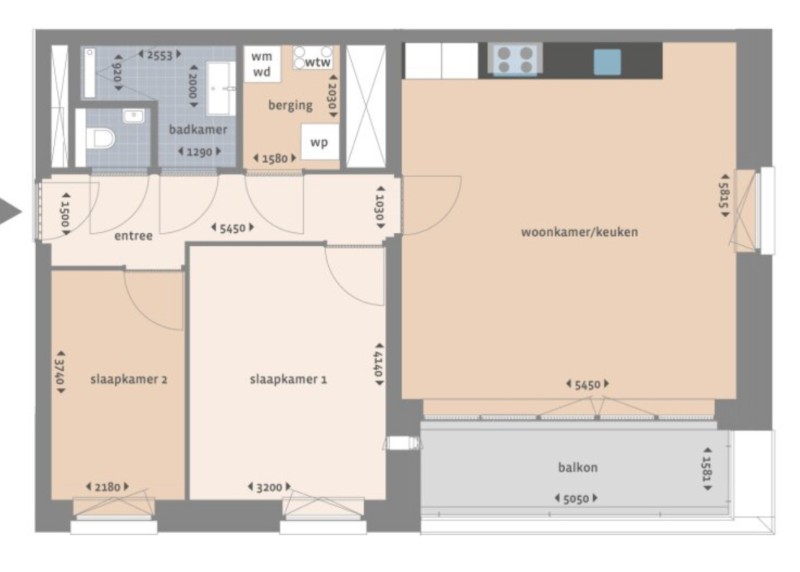
3-kamerappartement met een woonoppervlakte van 71 m², volledig ingerichte moderne witte keuken met inbouwapparatuur en betegelde badkamer met douche, wastafel met spiegel en vloerverwarming. Elements ligt in een groene, geweldige plek om te wonen en heeft de ideale ligging vlakbij het centrum van Haarlem. Energielevel a+++

Aanvullende informatie

Verhuuder: Elements

Kenmerken

  • Badkamer
  • Douche
  • Lift
  • Balkon

Voorzieningen

  • Bus/tramverbinding
  • Winkels

Gezochte woning

De aanbieder van deze woning is opzoek naar

Contact

Log in of maak een account aan om te reageren

Inloggen