Aangeboden woning

Nette, goed geïsoleerde woning in een rustige woonwijk.

Aanvullende informatie

Verhuuder: Kennemer Wonen

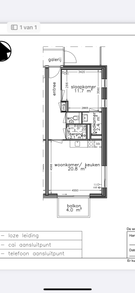
Kenmerken

  • Badkamer
  • Douche
  • C.V.
  • Lift
  • Balkon

Voorzieningen

  • Parkeergelegenheid
  • Park- of groenvoorziening
  • Bus/tramverbinding
  • Kindvriendelijk
  • Scholen
  • Winkels

Gezochte woning

De aanbieder van deze woning is opzoek naar

Contact

Log in of maak een account aan om te reageren

Inloggen