Aangeboden woning

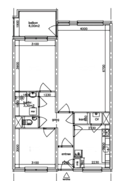
Het appartement bevindt zich in het prachtige Scheveningen en beschikt over twee slaapkamers, een woonkamer, een afgesloten keuken en een aparte badkamer en toilet. Het appartement heeft ook een balkon en er hoort een kelder bij. In het gebouw zijn twee liften en een afvalruimte alleen voor bewoners, dus u hoeft het gebouw niet te verlaten om afval weg te gooien. Het appartement ligt in een geweldige locatie, slechts 5 minuten lopen van het strand, dicht bij de duinen. Er zijn uitstekende verbindingen met het openbaar vervoer. De buren zijn rustig en vriendelijk, en er is een prachtig uitzicht vanuit de ramen. Wij zijn op zoek naar een eengezinswoning met minimaal 3 slaapkamers vanwege de uitbreiding van ons gezin.

Aanvullende informatie

Verhuuder: Staedion

Kenmerken

  • Douche
  • C.V.
  • Berging
  • Lift
  • Balkon

Voorzieningen

  • Park- of groenvoorziening
  • Bus/tramverbinding
  • Kindvriendelijk
  • Scholen
  • Winkels

Gezochte woning

De aanbieder van deze woning is opzoek naar

Contact

Log in of maak een account aan om te reageren

Inloggen