Aangeboden woning

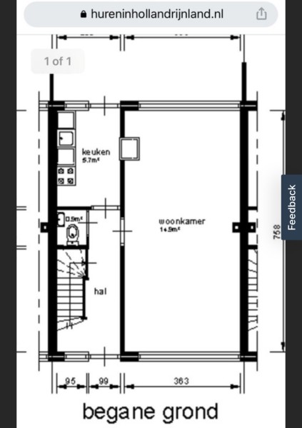
Deze prachtige eengezinswoning is gebouwd in 1966. In 2021 is de woning volledig geïsoleerd waardoor deze nu een energielabel A++++ heeft. Met zonnepanelen en een warmtepomp betreft dit een nul op de meter woning. Pieter Brueghelstraat 58 is gelegen in het fraaie Hazerswoude-Dorp. Dit is een kindvriendelijke buurt met relatief veel gezinnen. Verder is het een betrekkelijk rustige omgeving. De woning is redelijk tot goed bereikbaar met veel voorzieningen in de buurt. Gesitueerd op loopafstand van het centrum van Hazerswoude-Dorp, loopafstand van een supermarkt. Daarnaast is de dichtstbijzijnde uitvalsweg in de nabije omgeving op slechts 5 minuten rijden.

Aanvullende informatie

Verhuuder: Wywonen

Kenmerken

  • Badkamer
  • Douche
  • Voortuin
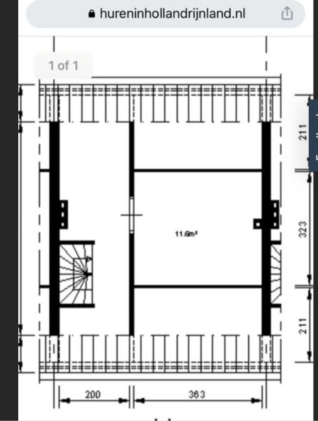
  • Zolder
  • Berging
  • Achtertuin

Voorzieningen

  • Parkeergelegenheid
  • Park- of groenvoorziening
  • Bus/tramverbinding
  • Kindvriendelijk
  • Scholen
  • Winkels

Gezochte woning

De aanbieder van deze woning is opzoek naar

Contact

Log in of maak een account aan om te reageren

Inloggen