Aangeboden woning

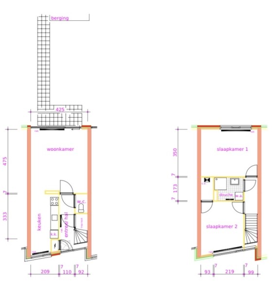
Comfortabele, goed onderhouden 3-kamer tussenwoning (uit 1996, energieklasse A), geschikt voor 1-2 (maximaal 3) personen, in het gezellige IJsselstein met tuin op het zuiden in een rustige buurt met voldoende gratis parkeergelegenheid, nabij uitvalswegen A2 en A12, Utrecht CS is met OV binnen een half uur bereikbaar. De woonkamer heeft een schuifpui naar de tuin toe. Er hangt een elektrisch bedienbaar zonnescherm. De op het zuiden gelegen tuin heeft tropisch beplante borders en een ruim terras. In de tuin is een schuur en een buitenkraan. De open keuken grenst aan de woonkamer. In de gang is het toilet en de meterkast. In 2024 heb ik de hele beneden verdieping, inclusief de trap, geschilderd en een nieuwe PVC-vloer laten leggen. Overname van de vloer en het zonnescherm zou ik erg waarderen. Overname van raambekleding, (tuin)meubilair etc. is in overleg ook mogelijk. Op de bovenverdieping zijn twee ruime slaapkamers. De badkamer heeft een wastafel, douche, wasmachineaansluiting en een tweede toilet. Er is opbergruimte in het hok waar de CV en zonneboiler staan. Aan de rand van de wijk Zenderpark naast het Hogebiezenpark. De buurt is rustig, in de straat is geen doorgaand verkeer en er is voldoende gratis parkeergelegenheid. Het centrum van IJsselstein is 5 minuten fietsen of een kwartier lopen. Het Centraal Station in Utrecht is met het OV binnen een half uur bereikbaar (6 minuten lopen naar de bushalte, 22 minuten met de bus). In de wijk zijn scholen, een supermarkt en een apotheek. IJsselstein ligt naast de A2 en nabij de A12. IJsselstein, het populairste stadje op Funda, is een gezellig stadje gelegen naast Utrecht. Er is een complete winkelstraat met gezellige terrassen en goede restaurants. IJsselstein heeft een levendig (cultureel) verenigingsleven zoals jaarlijks de IJVO voor kinderen, openbare tuinen, cursusproject KPIJ en theaterfestival mevrouw Klein Sprokkelhorst. Er is een bibliotheek, een theater met filmhuis en museum MIJ.

Aanvullende informatie

Verhuuder: Cazas

Kenmerken

  • Badkamer
  • Douche
  • C.V.
  • Berging
  • Achtertuin

Voorzieningen

  • Parkeergelegenheid
  • Park- of groenvoorziening
  • Bus/tramverbinding
  • Kindvriendelijk
  • Scholen
  • Winkels

Gezochte woning

De aanbieder van deze woning is opzoek naar

2 (of 3) kamer woning/appartement/flat met buitenruimte (tuin of balkon) in Deventer of Zutphen.

Contact

Log in of maak een account aan om te reageren

Inloggen