Aangeboden woning

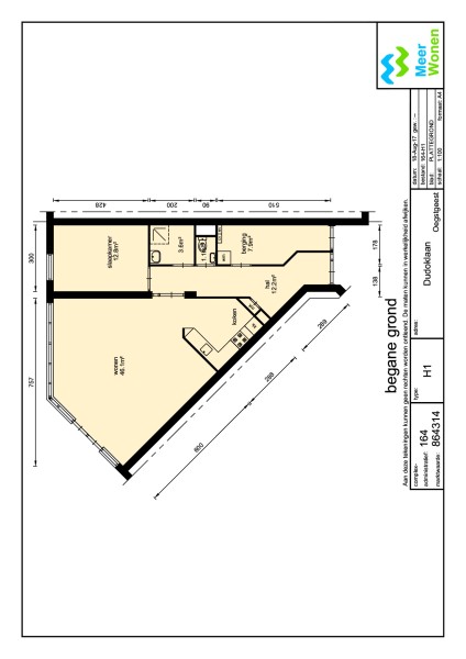
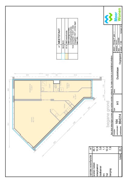
Begane grond seniorenwoning tegenover het Mien Ruyspark in Oegstgeest. Grote woonkamer, waar eventueel ruimte is voor een tweede slaapkamer. De vorige bewoner had er inderdaad een extra kamer in gerealiseerd. Hoekligging, met tuin rondom. Eigen ingang aan straat aan pleintje aan de achterkant bij parkeerterrein. De woning is helemaal opgeknapt, alle muren en plafonds zijn gebroken wit geschilderd. Op de fotos zijn die nog bruin (vorige bewoner). Half-open keuken met uitzicht op tuin. Lange gang met toegang tot berging, badkamer, toilet en slaapkamer. De foto's die hier staan zijn van de woning tijdens de bezichtiging. Ik heb sindsdien geen foto's meer gemaakt. De plattegrond staat er helaas niet recht op, die moet een kwartslag naar links worden gedraaid. Het smalle gedeelte is de ingang.

Aanvullende informatie

Verhuuder: WYwonen

Kenmerken

  • Badkamer
  • Douche
  • C.V.
  • Voortuin
  • Berging
  • Lift
  • Achtertuin

Voorzieningen

  • Parkeergelegenheid
  • Park- of groenvoorziening
  • Bus/tramverbinding
  • Kindvriendelijk
  • Scholen
  • Winkels

Gezochte woning

De aanbieder van deze woning is opzoek naar

2- of 3-kamerappartement, hoeft geen tuin te hebben, wel een ruim balkon. In een rustige buurt met groenvoorziening en winkels. In Leiden of Oegstgeest.

Contact

Log in of maak een account aan om te reageren

Inloggen